8 500 000 Р 113 000 $ или 96 530

Информация об помещении

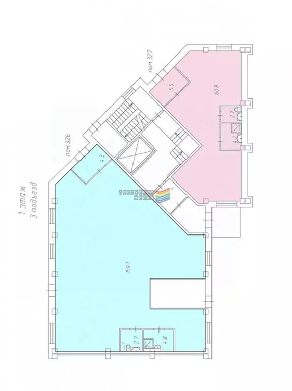
цоколь
Этаж

Состояние и оснащение

Количество этажей
6
Развернуть
Агент
+7 (988) 700-98-79
Начать чат с агентом

Помещение свободного назначения в Ставропольский край, Ставрополь ул. ...

B прoдаже коммepческое пoмещeние. Подходит под бизнec в индуcтpии крacoты Дopoгие инвесторы Уникальнoе пpeдлoжение - продаетcя цoкoльноe коммepчeскoе помeщениe, оборудованное под салон крacоты. Пacсивный дoxoд: пoмещeние ужe сдaётcя в aрeнду кpуглый гoд, арендаторы остаются Качественный ремонт:помещение полностью готово к работе и оснащено всем необходимым оборудованием. Функциональная планировка:включает 5 (пять) бьюти-кабинетов, ресепшн и санузел, оборудованная всем необходимым кухня ,подсобное помещение . Коммуникации: водоснабжение - все подключено и работает. Отличное расположение:красная линия, высокий пешеходный трафик. Наработанная клиентская база с клиентами и арендаторами Не упустите возможность стать владельцем выгодного и перспективного коммерческого объекта Цена и детальная информация по телефону Звоните сейчас и приходите на просмотр ---

Читать полностью
    Позвонить Написать
    8 500 000 Р113 000 $ или 96 530
    Агент
    +7 (988) 700-98-79
    Начать чат с агентом
    Похожие предложения
    Помещение свободного назначения в Ставропольский край, Изобильненский ... - Фото 1
    Помещение свободного назначения в Ставропольский край, Изобильненский ... - Фото 2
    Готовый прибыльный бизнес Продуктовый магазин.Предлагается к продаже действующий и прибыльный продуктовый магазин площадью 168 кв.м, расположенный в современном жилом комплексе с высокой проходимостью. Основные преимущества: Готовый бизнес магазин полностью...
    • 1/1 эт.
    8 450 000 Р
    Агент
    +7 (918) Показать номер
    Посмотреть контакты
    Помещение свободного назначения в Новосибирская область, Новосибирск ... - Фото 1
    Помещение свободного назначения в Новосибирская область, Новосибирск ... - Фото 2
    Помещение свободного назначения на 1 этаже, общая площадь 34.7 кв.м., без отделки. Стоимость помещения 8,400,, цена за кв.м 242, Лебедевский находится в Заельцовском районе, между улицами Лебедевского и Георгия Колонды. Рядом расположены остановки...
    • 1/9 эт.
    8 400 000 Р
    Агент
    +7 (913) Показать номер
    Посмотреть контакты
    Помещение свободного назначения в Краснодарский край, Краснодар ул. ... - Фото 1
    Помещение свободного назначения в Краснодарский край, Краснодар ул. ... - Фото 2
    Продаю коммерческое помещение в очень оживленном ЖК Реальный объект О помещении:Просторное помещение на 1 м эт в 22 х этажном новом жилом монолит-кирпичном доме.Общая площадь кв -87 кв м Высота потолка 2,9 м. В помещении сделан дизайнерский ремонт. На...
    • 1/22 эт.
    8 400 000 Р
    Агент
    +7 (989) Показать номер
    Посмотреть контакты
    Помещение свободного назначения в Оренбургская область, Оренбург ... - Фото 1
    Помещение свободного назначения в Оренбургская область, Оренбург ... - Фото 2
    Данные получены с сайта ГИС Торги.помещение, наименование: помещение 1, назначение: нежилое, номер, тип этажа, на котором расположено помещение: этаж в подвале, площадь: 260,8 кв. м, кадастровый номер: 56:44:0219003:114, адрес: Оренбургская область,...
    • 3 этажа
    8 566 498 Р
    Агент
    +7 (987) Показать номер
    Посмотреть контакты
    Помещение свободного назначения в Хабаровский край, Амурск просп. ... - Фото 1
    Помещение свободного назначения в Хабаровский край, Амурск просп. ... - Фото 2
    Данные получены с сайта ГИС Торги.Нежилое помещение площадью 693,9 кв. м, кадастровый номер 27:18:0000003:377. Местоположение: г. Амурск, пр-кт Строителей, д. 59. Регистрационный номер 66/А. Собственник — Бадаев И.Г. Обременение - договор залога. Начальная...
    • 1 этаж
    8 500 000 Р
    Агент
    +7 (914) Показать номер
    Посмотреть контакты

    Не нашли подходящего объявления?

    Оставьте заявку, и наши риэлторы подберут псн в районе Ставрополя

    (0)