Реализация объекта недвижимости приостановлена

Информация о квартире

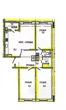
88.0 м2
Площадь
50.0 м2
Жилая
12.0 м2
Кухня
3
Комнаты
7
Этаж
11
Этажность

Дополнительная информация

Тип дома
кирпичный
Развернуть

3-к кв. Ставропольский край, Ставрополь ул. Тухачевского, 28/1 (88.0 ...

В продаже очень просторная,3-х комнатная квартира ,в Промышленном районе. Расположена ,на удобном для жизни,7-м этаже. Самая удачная планировка- распашонка. Все комнаты раздельные. Очень просторная кухня,с выходом на лоджию. Большой коридор .Установлены дороги,качественные межкомнатные двери. Кухня из натурального дерева .В квартире есть кладовая,с полочками .Санузел раздельный,в кафеле Прекрасные ,дружелюбные соседи. Индивидуальное отопление,соответственно низкие коммунальные платежи.Установлена сплит-система,мощная,хватает на всю площадь квартиры.Квартира очень теплая .не торцевая ,не угловая .Новым собственникам остается все,что на фото.Готовая детская комната Очень развитая инфраструктура ,в этом районе есть все для жизни.Во дворе детская и спортивная площадки. В пешей доступности музыкальный фонтан,аллея Героев,Диагностический центр,школы ,сады,поликлиника ,роддом ,Тухачевский рынок.Прекрасная транспортная развязка,возможность добраться в любую часть города. Остановки ,в 2-х минутах ходьбы.Отличный ,готовый вариант для жизни дружной семьи В квартире прекрасная энергетика,убедитесь в этом сами )))Шикарные видовые характеристики Квартира юридически чистая ,более 3-х лет в собственности .Продается в связи с переездом . Полное юридическое сопровождение,на каждом этапе сделки .Звоните ,оперативный показ в любое ,удобное для Вас время

Читать полностью

    Реализация объекта недвижимости приостановлена

    Не нашли подходящего объявления?

    Оставьте заявку, и наши риэлторы подберут квартиру в районе Ставрополя

    (0)