10 256 010 Р 130 100 $ или 111 800

Информация о квартире

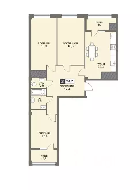
94 м2
Площадь
3
Комнаты
10
Этаж
12
Этажность
Развернуть
Агент
+7 (901) 931-43-76
Начать чат с агентом

3-к кв. Ставропольский край, Ставрополь ул. Серова, 468/3 (94.7 м)

Продаётся 3-комнатная квартира в строящемся доме (Серова, 468/3), срок сдачи: IV-кв. 2025, общей площадью 94.7 кв.м., на 10 этаже. СТАРТ ПРОДАЖ КЛУБНОГО ДОМА СЕРОВ Клубный Дом СЕРОВ - это дом элит класса с небольшим количеством квартир, эксклюзивным дизайном и идеальным расположением Клубный Дом СЕРОВасположен в Ленинском районе (204 квартал) города Ставрополя. Срок сдачи дома 2-3 квартал 2025 года. Квартиры продаются напрямую от застройщика и БЕЗ КОМИССИИ Презентация дома. 12 этажей, 4 подъезда. Подземный паркинг на 60 машиномест. Индивидуальное отопление. В каждой квартире установлен двухконтурный котел. Предчистовая отделка. Высота потолков 3.0 м. Тёплые полы (Кухня, сан.узел и коридор) Оконная система EXPROF 70 мм., пятикамерный профиль и двойной контур уплотнения. Входные сейфовые металлические двери TOREX. Грузопассажирские и пассажирские лифты фирмы OTIS. Закрытая территория, консьерж, видеонаблюдение. Умная домофония, интернет на территории дома. Велопарковка и колясочная в каждом подъезде. Жилой комплекс строится из качественных и долговечных материалов с отличной шумоизоляцией. В шаговой доступности вся необходимая инфраструктура (детский сад, школа, зоны отдыха, магазины). Своя остановка маршрутных транспортных средств перед домом. Строительство ведётся по 214-ФЗ Наиболее выгодная цена на этапе строительства. Успейте забронировать квартиру мечты напрямую от застройщика. Записывайтесь на бесплатную экскурсию, посетив которую, вы можете подробно ознакомиться с планировкой вашей квартиры и спланировать ремонт или дизайн интерьера, чтобы в будущем создать идеальное пространство, отражающее ваши предпочтения. Способ оплаты:При покупке квартиры от застройщика, Вы можете использовать все популярные сейчас способы: 100 оплата. Когда у Вас есть вся сумма в наличии. Рассрочка. Первоначальный взнос и график платежей определяем индивидуально. Ипотека. Сотрудничаем с ведущими банками России и поможем подобрать выгодную ипотечную программу. Материнский капитал. Можно использовать на участие в долевом строительстве или на погашение ипотеки. Если у Вас возникли вопросы, позвоните нам. Менеджер все подробно расскажет и поберет для Вас лучший вариант. Бронирование квартиры совершенно бесплатно

Читать полностью
    Позвонить Написать
    10 256 010 Р130 100 $ или 111 800
    Агент
    +7 (901) 931-43-76
    Начать чат с агентом
    Похожие предложения в Ставрополе
    3-к кв. Ставропольский край, Ставрополь ул. Серова, 468/3 (94.7 м) - Фото 1
    3-к кв. Ставропольский край, Ставрополь ул. Серова, 468/3 (94.7 м) - Фото 2
    3-комнатная квартира, общая площадь 94м²

    Продаётся 3-комнатная квартира в строящемся доме (Серова, 468/3), срок сдачи: IV-кв. 2025, общей площадью 94.7 кв.м., на 11 этаже. СТАРТ ПРОДАЖ КЛУБНОГО ДОМА СЕРОВ Клубный Дом СЕРОВ - это дом элит класса с небольшим количеством квартир, эксклюзивным...
    • 94 м²
    • 3-ком
    • 11/12 эт.
    10 729 510 Р
    Агент
    +7 (938) Показать номер
    Посмотреть контакты
    3-к кв. Ставропольский край, Ставрополь ул. Серова, 468/3 (94.7 м) - Фото 1
    3-к кв. Ставропольский край, Ставрополь ул. Серова, 468/3 (94.7 м) - Фото 2
    3-комнатная квартира, общая площадь 94м²

    Продаётся 3-комнатная квартира в строящемся доме (Серова, 468/3), срок сдачи: IV-кв. 2025, общей площадью 94.7 кв.м., на 11 этаже. СТАРТ ПРОДАЖ КЛУБНОГО ДОМА СЕРОВ Клубный Дом СЕРОВ - это дом элит класса с небольшим количеством квартир, эксклюзивным...
    • 94 м²
    • 3-ком
    • 11/12 эт.
    10 256 010 Р
    Агент
    +7 (901) Показать номер
    Посмотреть контакты
    3-к кв. Ставропольский край, Ставрополь ул. Серова, 468/3 (94.7 м) - Фото 1
    3-к кв. Ставропольский край, Ставрополь ул. Серова, 468/3 (94.7 м) - Фото 2
    3-комнатная квартира, общая площадь 94м²

    Продаётся 3-комнатная квартира в строящемся доме (Серова, 468/3), срок сдачи: IV-кв. 2025, общей площадью 94.7 кв.м., на 12 этаже. СТАРТ ПРОДАЖ КЛУБНОГО ДОМА СЕРОВ Клубный Дом СЕРОВ - это дом элит класса с небольшим количеством квартир, эксклюзивным...
    • 94 м²
    • 3-ком
    • 12/12 эт.
    10 256 010 Р
    Агент
    +7 (901) Показать номер
    Посмотреть контакты
    2-к кв. Ставропольский край, Ставрополь ул. Серова, 468/3 (84.6 м) - Фото 1
    2-к кв. Ставропольский край, Ставрополь ул. Серова, 468/3 (84.6 м) - Фото 2
    2-комнатная квартира, общая площадь 84м²

    Продаётся 2-комнатная квартира в строящемся доме (Серова, 468/3), срок сдачи: IV-кв. 2025, общей площадью 84.6 кв.м., на 11 этаже. СТАРТ ПРОДАЖ КЛУБНОГО ДОМА СЕРОВ Клубный Дом СЕРОВ - это дом элит класса с небольшим количеством квартир, эксклюзивным...
    • 84 м²
    • 2-ком
    • 11/12 эт.
    9 348 300 Р
    Агент
    +7 (901) Показать номер
    Посмотреть контакты
    3-к кв. Ставропольский край, Ставрополь ул. Серова, 468/3 (99.1 м) - Фото 1
    3-к кв. Ставропольский край, Ставрополь ул. Серова, 468/3 (99.1 м) - Фото 2
    3-комнатная квартира, общая площадь 99м²

    Продаётся 3-комнатная квартира в строящемся доме (Серова, 468/3), срок сдачи: IV-кв. 2025, общей площадью 99.1 кв.м., на 10 этаже. СТАРТ ПРОДАЖ КЛУБНОГО ДОМА СЕРОВ Клубный Дом СЕРОВ - это дом элит класса с небольшим количеством квартир, эксклюзивным...
    • 99 м²
    • 3-ком
    • 10/12 эт.
    10 732 530 Р
    Агент
    +7 (901) Показать номер
    Посмотреть контакты

    Не нашли подходящего объявления?

    Оставьте заявку, и наши риэлторы подберут квартиру в новостройке в районе Ставрополя

    (0)