Реализация объекта недвижимости приостановлена

Информация о квартире

71.0 м2
Площадь
2
Комнаты
1
Этаж
8
Этажность
Развернуть

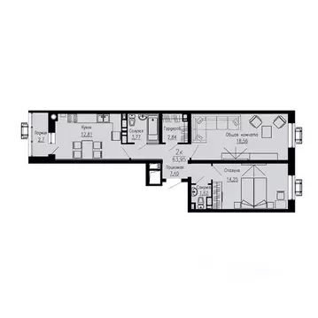
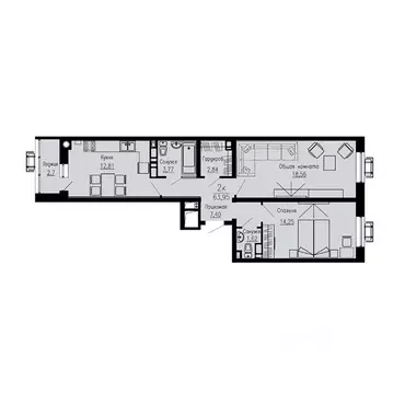
2-к кв. Ставропольский край, Пятигорск Новопятигорск мкр, Курортный ...

Продаётся 2-комнатная квартира в строящемся доме (2 этап корпус 2), срок сдачи: IV-кв. 2025, общей площадью 71.3 кв.м., на 1 этаже. Архитектура жилого комплекса идеально сочетается с окружающим ландшафтом благодаря панорамным окнам и нейтральным фасадам. Находится в тихом районе возле Парка Победы и Новопятигорского озера, в нескольких минутах ходьбы от школ, детских садов и магазинов. Удобный выезд к главным точкам г. Пятигорск и КМВ. Сдача дома I квартал 2025 г. Объявление от застройщика, покупка защищена банком.1-комнатная квартира в ЖК Курортный - отличный выбор для молодых семей и инвесторов. 2-комнатная квартира идеальна для комфортной жизни.Покупка возможна через материнский капитал, ипотеку от ведущих банков страны и рассрочку от застройщика.

Читать полностью

    Реализация объекта недвижимости приостановлена

    Не нашли подходящего объявления?

    Оставьте заявку, и наши риэлторы подберут квартиру в новостройке в районе Пятигорска

    (0)