10 900 000 Р 134 600 $ или 115 900

Информация о квартире

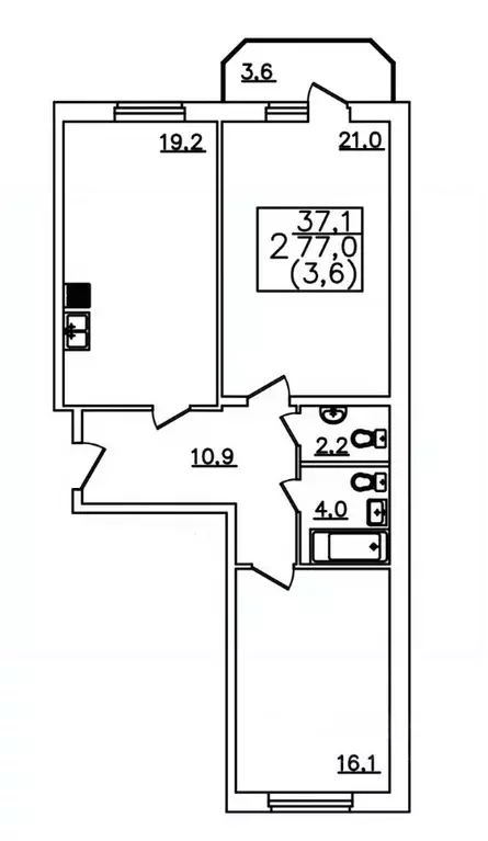
77 м2
Площадь
2
Комнаты
12
Этаж
12
Этажность
Развернуть
Агент
+7 (938) 541-83-59
Начать чат с агентом

2-к кв. Ставропольский край, Пятигорск Бештау мкр, Алые Паруса жилой ...

Продаётся 2-комнатная квартира в строящемся доме (Дом 1), срок сдачи: I-кв. 2026, общей площадью 77 кв.м., на 12 этаже. Многоквартирный жилой дом Алые паруса по ул. Ессентуксуая 33, со встроееными нежилыми, коммерческими помещениями на первом этаже. Строительство жилого дома ведется в центре престижного микрорайона Бештау г.Пятигорска.Отличительными преимуществами дома являются:- концепция Двор без машин : отсутствует проезжая часть внутри комплекса, снижение шума, отсутствие загазованности;- концепция Двор для своих : территория закрыта от посторонних, доступ во двор осуществляется по PIN-коду. Видеонаблюдение по периметру и на территории;- концепция Максимальное озеленение : внутренняя территория - мини-парк Алые Паруса. Вместо проезжей части внутри комплекса размещается детский игровой комплекс, спортивная площадка, площадки отдыха, прогулочные зоны;- концепция Климат-контроль : автоматическое погодозависимое отопление для создания комфортного микроклимата;- концепция Бытовая безопасность : отсутствие газовых взрывоопасных приборов в квартире. Котел вынесен на кровлю- увеличенная полезная площадь на кухне, удобство обслуживания и эксплуатации, повышееная пожаробезопасность, безопасность для здоровья (отсутствие выделений токсичных веществ, не сжигается кислород), пониженный тариф на электроэнергию. -отделка фасада - керамический облицовочный кирпич, природный камень, декоративное освещение;- бесшумные скоростные лифты;- высота потолков 2,9 метра;- панорамное остекление, ламинированные стеклопакеты;- максимально развитая городская инфраструктура в шаговой доступности; Строительство ведется по 214-ФЗ. Доступна семейная и IT ипотеки.

Читать полностью
    Позвонить Написать
    10 900 000 Р134 600 $ или 115 900
    Агент
    +7 (938) 541-83-59
    Начать чат с агентом
    Похожие предложения в Пятигорске
    2-к кв. Ставропольский край, Пятигорск Новопятигорск мкр, Курортный ... - Фото 1
    2-к кв. Ставропольский край, Пятигорск Новопятигорск мкр, Курортный ... - Фото 2
    2-комнатная квартира, общая площадь 61м²

    Продаётся 2-комнатная квартира в строящемся доме (2 этап корпус 6), срок сдачи: IV-кв. 2025, общей площадью 61.15 кв.м., на 8 этаже. Архитектура жилого комплекса идеально сочетается с окружающим ландшафтом благодаря панорамным окнам и нейтральным фасадам....
    • 61 м²
    • 2-ком
    • 8/8 эт.
    10 212 050 Р
    Агент
    +7 (933) Показать номер
    Посмотреть контакты
    2-к кв. Ставропольский край, Пятигорск Новопятигорск мкр, Курортный ... - Фото 1
    2-к кв. Ставропольский край, Пятигорск Новопятигорск мкр, Курортный ... - Фото 2
    2-комнатная квартира, общая площадь 66м²

    Продаётся 2-комнатная квартира в строящемся доме (3 этап корпус 5), срок сдачи: IV-кв. 2025, общей площадью 66.55 кв.м., на 6 этаже. Архитектура жилого комплекса идеально сочетается с окружающим ландшафтом благодаря панорамным окнам и нейтральным фасадам....
    • 66 м²
    • 2-ком
    • 6/8 эт.
    11 979 000 Р
    Агент
    +7 (933) Показать номер
    Посмотреть контакты
    2-к кв. Ставропольский край, Пятигорск Новопятигорск мкр, Курортный ... - Фото 1
    2-к кв. Ставропольский край, Пятигорск Новопятигорск мкр, Курортный ... - Фото 2
    2-комнатная квартира, общая площадь 66м²

    Продаётся 2-комнатная квартира в строящемся доме (3 этап корпус 5), срок сдачи: IV-кв. 2025, общей площадью 66.55 кв.м., на 8 этаже. Архитектура жилого комплекса идеально сочетается с окружающим ландшафтом благодаря панорамным окнам и нейтральным фасадам....
    • 66 м²
    • 2-ком
    • 8/8 эт.
    11 979 000 Р
    Агент
    +7 (933) Показать номер
    Посмотреть контакты
    2-к кв. Ставропольский край, Пятигорск Новопятигорск мкр, Курортный ... - Фото 1
    2-к кв. Ставропольский край, Пятигорск Новопятигорск мкр, Курортный ... - Фото 2
    2-комнатная квартира, общая площадь 64м²

    Продаётся 2-комнатная квартира в строящемся доме (2 этап корпус 6), срок сдачи: IV-кв. 2025, общей площадью 64.85 кв.м., на 7 этаже. Архитектура жилого комплекса идеально сочетается с окружающим ландшафтом благодаря панорамным окнам и нейтральным фасадам....
    • 64 м²
    • 2-ком
    • 7/8 эт.
    10 829 950 Р
    Агент
    +7 (933) Показать номер
    Посмотреть контакты
    2-к кв. Ставропольский край, Пятигорск Новопятигорск мкр, Курортный ... - Фото 1
    2-к кв. Ставропольский край, Пятигорск Новопятигорск мкр, Курортный ... - Фото 2
    2-комнатная квартира, общая площадь 66м²

    Продаётся 2-комнатная квартира в сданном доме (1 этап корпус 2), срок сдачи: II-кв. 2025, общей площадью 66.3 кв.м., на 1 этаже. Архитектура жилого комплекса идеально сочетается с окружающим ландшафтом благодаря панорамным окнам и нейтральным фасадам....
    • 66 м²
    • 2-ком
    • 1/8 эт.
    11 072 100 Р
    Агент
    +7 (933) Показать номер
    Посмотреть контакты

    Не нашли подходящего объявления?

    Оставьте заявку, и наши риэлторы подберут квартиру в новостройке в районе Пятигорска

    (0)