10 900 000 Р 137 900 $ или 120 400

Информация о квартире

77 м2
Площадь
2
Комнаты
9
Этаж
12
Этажность
Развернуть
Агент
+7 (901) 931-44-61
Начать чат с агентом

2-к кв. Ставропольский край, Пятигорск Бештау мкр, Алые Паруса жилой ...

Продаётся 2-комнатная квартира в строящемся доме (Дом 1), срок сдачи: I-кв. 2026, общей площадью 77 кв.м., на 9 этаже. Многоквартирный жилой дом Алые паруса по ул. Ессентуксуая 33, со встроееными нежилыми, коммерческими помещениями на первом этаже. Строительство жилого дома ведется в центре престижного микрорайона Бештау г.Пятигорска.Отличительными преимуществами дома являются:- концепция Двор без машин : отсутствует проезжая часть внутри комплекса, снижение шума, отсутствие загазованности;- концепция Двор для своих : территория закрыта от посторонних, доступ во двор осуществляется по PIN-коду. Видеонаблюдение по периметру и на территории;- концепция Максимальное озеленение : внутренняя территория - мини-парк Алые Паруса. Вместо проезжей части внутри комплекса размещается детский игровой комплекс, спортивная площадка, площадки отдыха, прогулочные зоны;- концепция Климат-контроль : автоматическое погодозависимое отопление для создания комфортного микроклимата;- концепция Бытовая безопасность : отсутствие газовых взрывоопасных приборов в квартире. Котел вынесен на кровлю- увеличенная полезная площадь на кухне, удобство обслуживания и эксплуатации, повышееная пожаробезопасность, безопасность для здоровья (отсутствие выделений токсичных веществ, не сжигается кислород), пониженный тариф на электроэнергию. -отделка фасада - керамический облицовочный кирпич, природный камень, декоративное освещение;- бесшумные скоростные лифты;- высота потолков 2,9 метра;- панорамное остекление, ламинированные стеклопакеты;- максимально развитая городская инфраструктура в шаговой доступности; Строительство ведется по 214-ФЗ. Доступна семейная и IT ипотеки.

Читать полностью
    Позвонить Написать
    10 900 000 Р137 900 $ или 120 400
    Агент
    +7 (901) 931-44-61
    Начать чат с агентом
    Похожие предложения в Пятигорске
    1-к кв. Ставропольский край, Пятигорск Скачки мкр,  (51.37 м) - Фото 1
    1-к кв. Ставропольский край, Пятигорск Скачки мкр,  (51.37 м) - Фото 2
    1-комнатная квартира, общая площадь 51м²

    Жилой Комплекс ВОЛНА - КВАРТИРЫ ОТ ЗАСТРОЙЩИКА В ПЯТИГОРСКЕ ЭКСКЛЮЗИВНАЯ АКЦИЯ СКИДКА 12 НА КВАРТИРЫ 2-Й ОЧЕРЕДИ ЭКОНОМИЯ ДОРУБЛЕЙ НА ПОКУПКЕ УНИКАЛЬНОЕ ТОРГОВОЕ ПРЕДЛОЖЕНИЕ: ЕДИНСТВЕННЫЙ ЖК в Пятигорске на территории бывшего легендарного отеля...
    • 51 м²
    • 1-ком
    • 10/12 эт.
    10 274 000 Р
    Агент
    +7 (932) Показать номер
    Посмотреть контакты
    2-к кв. Ставропольский край, Пятигорск Скачки мкр,  (57.61 м) - Фото 1
    2-к кв. Ставропольский край, Пятигорск Скачки мкр,  (57.61 м) - Фото 2
    2-комнатная квартира, общая площадь 57м²

    Жилой Комплекс ВОЛНА - КВАРТИРЫ ОТ ЗАСТРОЙЩИКА В ПЯТИГОРСКЕ ЭКСКЛЮЗИВНАЯ АКЦИЯ СКИДКА 12 НА КВАРТИРЫ 2-Й ОЧЕРЕДИ ЭКОНОМИЯ ДОРУБЛЕЙ НА ПОКУПКЕ УНИКАЛЬНОЕ ТОРГОВОЕ ПРЕДЛОЖЕНИЕ: ЕДИНСТВЕННЫЙ ЖК в Пятигорске на территории бывшего легендарного отеля...
    • 57 м²
    • 2-ком
    • 2/12 эт.
    10 196 970 Р
    Агент
    +7 (932) Показать номер
    Посмотреть контакты
    2-к кв. Ставропольский край, Пятигорск Скачки мкр,  (67.72 м) - Фото 1
    2-к кв. Ставропольский край, Пятигорск Скачки мкр,  (67.72 м) - Фото 2
    2-комнатная квартира, общая площадь 67м²

    Жилой Комплекс ВОЛНА - КВАРТИРЫ ОТ ЗАСТРОЙЩИКА В ПЯТИГОРСКЕ ЭКСКЛЮЗИВНАЯ АКЦИЯ СКИДКА 12 НА КВАРТИРЫ 2-Й ОЧЕРЕДИ ЭКОНОМИЯ ДОРУБЛЕЙ НА ПОКУПКЕ УНИКАЛЬНОЕ ТОРГОВОЕ ПРЕДЛОЖЕНИЕ: ЕДИНСТВЕННЫЙ ЖК в Пятигорске на территории бывшего легендарного отеля...
    • 67 м²
    • 2-ком
    • 2/12 эт.
    11 986 440 Р
    Агент
    +7 (932) Показать номер
    Посмотреть контакты
    2-к кв. Ставропольский край, Пятигорск Скачки мкр,  (66.46 м) - Фото 1
    2-к кв. Ставропольский край, Пятигорск Скачки мкр,  (66.46 м) - Фото 2
    2-комнатная квартира, общая площадь 66м²

    Жилой Комплекс ВОЛНА - КВАРТИРЫ ОТ ЗАСТРОЙЩИКА В ПЯТИГОРСКЕ ЭКСКЛЮЗИВНАЯ АКЦИЯ СКИДКА 12 НА КВАРТИРЫ 2-Й ОЧЕРЕДИ ЭКОНОМИЯ ДОРУБЛЕЙ НА ПОКУПКЕ УНИКАЛЬНОЕ ТОРГОВОЕ ПРЕДЛОЖЕНИЕ: ЕДИНСТВЕННЫЙ ЖК в Пятигорске на территории бывшего легендарного отеля...
    • 66 м²
    • 2-ком
    • 4/12 эт.
    11 962 799 Р
    Агент
    +7 (932) Показать номер
    Посмотреть контакты
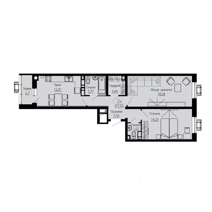
    2-к кв. Ставропольский край, Пятигорск Скачки мкр,  (63.95 м) - Фото 1
    2-к кв. Ставропольский край, Пятигорск Скачки мкр,  (63.95 м) - Фото 2
    2-комнатная квартира, общая площадь 63м²

    Жилой Комплекс ВОЛНА - КВАРТИРЫ ОТ ЗАСТРОЙЩИКА В ПЯТИГОРСКЕ ЭКСКЛЮЗИВНАЯ АКЦИЯ СКИДКА 12 НА КВАРТИРЫ 2-Й ОЧЕРЕДИ ЭКОНОМИЯ ДОРУБЛЕЙ НА ПОКУПКЕ УНИКАЛЬНОЕ ТОРГОВОЕ ПРЕДЛОЖЕНИЕ: ЕДИНСТВЕННЫЙ ЖК в Пятигорске на территории бывшего легендарного отеля...
    • 63 м²
    • 2-ком
    • 3/12 эт.
    11 511 000 Р
    Агент
    +7 (932) Показать номер
    Посмотреть контакты

    Не нашли подходящего объявления?

    Оставьте заявку, и наши риэлторы подберут квартиру в новостройке в районе Пятигорска

    (0)