20 400 000 Р 252 200 $ или 218 500

Информация о квартире

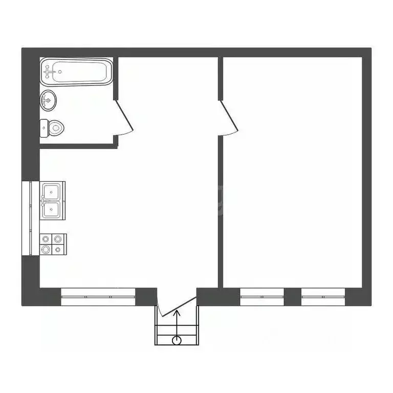
60 м2
Площадь
16 м2
Кухня
1
Комната
3
Этаж
10
Этажность
Развернуть
Агент
+7 (988) 090-43-56
Начать чат с агентом

1-к кв. Ставропольский край, Кисловодск ул. Куйбышева, 7 (60.0 м)

Продается просторная однокомнатная квартира площадью 60 кв. м, расположенная на 3 этаже 10-этажного дома, построенного в 2024 году. Высокие потолки 3 метра создают ощущение свободы и простора. Из окон открывается вид на тихий двор, где всегда тихо и спокойно. Удобная планировка включает просторную кухню площадью 16,9 кв. м, где можно обустроить уютную зону для готовки и отдыха.Квартира предлагается без ремонта, что дает возможность создать интерьер по своему вкусу и потребностям. Светлая и просторная кухня позволяет разместить всю необходимую мебель и технику. Совмещенный санузел удобен и практичен. Есть балкон, где можно обустроить небольшую зону отдыха или мини-сад.Дом новый и современный, с наземной и подземной парковкой и пассажирским лифтом, поэтому подъезд всегда чистый и ухоженный. Удобное расположение дома обеспечивает доступ ко всем необходимым объектам инфраструктуры.Рядом с домом находятся несколько школ и детских садов, что будет удобно для семей с детьми. В шаговой доступности — клиники и магазины, где можно приобрести все необходимое для комфортной жизни. Транспортная доступность хорошая, до ближайших остановок можно дойти за несколько минут, что позволяет быстро добраться до любой точки города.Квартира продается по договору купли-продажи. Возможна ипотека, что делает приобретение более доступным. Документы готовы к сделке, обременений нет, поэтому процесс покупки будет быстрым и прозрачным.

Читать полностью

    Для того, чтобы купить однокомнатную квартиру по адресу: Кисловодск, ул. Куйбышева, 7, позвоните по телефону +7 (988) 090-43-56. Торопитесь! Объявление №30091348573 о продаже однокомнатной квартиры опубликовано 25 октября 2025.

    Позвонить Написать
    20 400 000 Р252 200 $ или 218 500
    Агент
    +7 (988) 090-43-56
    Начать чат с агентом
    Похожие предложения
    1-к кв. Ставропольский край, Кисловодск ул. Островского, 38 (56.9 м) - Фото 1
    1-к кв. Ставропольский край, Кисловодск ул. Островского, 38 (56.9 м) - Фото 2
    1-комнатная квартира, общая площадь 56м², кухня 30м²

    Продается однокомнатная квартира в новом доме с индивидуальным отоплением. В квартире сделан капитальный ремонт. В квартире частично остается мебель. В ванной комнате теплые полы. Рядом множество магазинов, школа и детский сад.При звонке сообщите, пожалуйста,...
    • 56 м²
    • 1-ком
    • 6/8 эт.
    19 900 000 Р
    Агент
    +7 (988) Показать номер
    Посмотреть контакты
    2-к кв. Ставропольский край, Кисловодск Коллективная ул., 11 (58.0 м) - Фото 1
    2-к кв. Ставропольский край, Кисловодск Коллективная ул., 11 (58.0 м) - Фото 2
    2-комнатная квартира, общая площадь 58м², кухня 14м²

    Продается двухкомнатная квартира в новостройке после капитального ремонта. Находиться на первом этаже. Квартира продается со всей мебелью и техникой.По всей квартире сделаны теплые полы. Два сан.узла, панорамные окна, индивидуальное отопление. Район...
    • 58 м²
    • 2-ком
    • 1/9 эт.
    20 000 000 Р
    Агент
    +7 (988) Показать номер
    Посмотреть контакты
    2-к кв. Ставропольский край, Кисловодск ул. Чкалова (58.1 м) - Фото 1
    2-к кв. Ставропольский край, Кисловодск ул. Чкалова (58.1 м) - Фото 2
    2-комнатная квартира, общая площадь 58м², кухня 12м²

    Продается двухкомнатная квартира с ремонтом и мебелью в клубном доме с закрытой территорией.В доме всего 8 квартир.Центр города три минуты ходьбы от курортного бульвара.Идеально подходит для сдачи, или комфортной жизни в самом центре города.
    • 58 м²
    • 2-ком
    • 3/3 эт.
    • кирпичный
    21 000 000 Р
    Агент
    +7 (918) Показать номер
    Посмотреть контакты
    1-к кв. Ставропольский край, Кисловодск ул. Шаляпина (36.0 м) - Фото 1
    1-к кв. Ставропольский край, Кисловодск ул. Шаляпина (36.0 м) - Фото 2
    1-комнатная квартира, общая площадь 36м², жилая 24м², кухня 7м²

    Однокомнатная квартира в самом центре города-курорта Кисловодска.Расположена в самом сердце курортной зоныДо ж/д вокзала всего 100 метровРядом Нарзанная галерея, центральный парк и лучшие рестораны городаЗакрытый двор с автоматическими воротами — безопасность...
    • 36 м²
    • 1-ком
    • 1/1 эт.
    19 700 000 Р
    Агент
    +7 (988) Показать номер
    Посмотреть контакты
    2-к кв. Ставропольский край, Кисловодск ул. Революции, 44 (95.0 м) - Фото 1
    2-к кв. Ставропольский край, Кисловодск ул. Революции, 44 (95.0 м) - Фото 2
    2-комнатная квартира, общая площадь 95м², жилая 70м², кухня 15м²

    Продается 2х комнатная квартира, расположенная в 10 минутах от курортного бульвара и центра Квартира с евро ремонтом.Очень уютная и теплая.Закрытая территория под шлагбаумом.Преимущества:Цена рыночнаяБез обременений и долговИнфраструктура:Транспортная...
    • 95 м²
    • 2-ком
    • 2/4 эт.
    20 500 000 Р
    Агент
    +7 (988) Показать номер
    Посмотреть контакты

    Не нашли подходящего объявления?

    Оставьте заявку, и наши риэлторы подберут квартиру в районе Кисловодска

    (0)